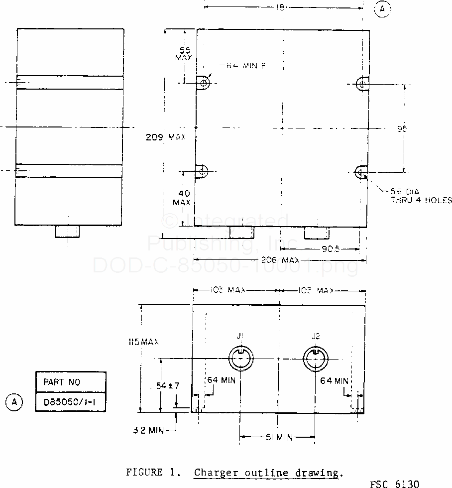
DOD-C-85050 Charger, Battery, Nickel-Cadmium, Aircraft General Specification ForThis specification covers the general requirements of airborne battery chargers for use with aircraft nickel-cadmium batteries to maintain the batteries in an optimum state of charge condition.